Артикул: 62969
Уровней фильтрации: 2 (картонный лабиринтный фильтр и стекловолокнистый)
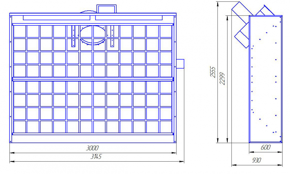
Габаритные размеры ДхШ(Г)хВ: 3145х930х2555 мм
Размер рабочей зоны ДхВ: 2920х2200 мм
Вытяжка: 2,2кВт (1500 об/мин)
Функциональное назначение покрасочного стенда сухой фильтрации - работа в качестве вытяжки. Он удаляет излишние частицы краски, пыли, пары растворителя повышает таким образом качество получаемого покрытия.
В сухих окрасочных стендах можно распылять материалы любым видом оборудования, с любыми системами: воздушное (пневматика RP, LP, HVLP), безвоздушное, комбинированное. Для распыления клея это наилучшее решение!
Зона всасывания имеет два уровня фильтрации: картонный лабиринтный фильтр и стекловолокнистый.
На крыше покрасочного стенда установлен вентилятор, который всасывает пары растворителей и удаляет их из помещения.
Во всех комплектациях устанавливаются высокопроизводительный вентилятор и качественные фильтры.
Все покрасочные камеры имеют сборно-разборную конструкцию и не занимают много места при транспортировке.
Возможно изготовление сухих окрасочных камер индивидуального исполнения (длина, ширина, высота рабочей зоны), установка на оборудование различных вытяжных систем (высокого, низкого, среднего давления), установка при необходимости приточных систем работающих от природного газа, дизельного топлива, электричества.
А так, же организация лакокрасочных участков целиком со всей необходимой для производства внутренней логистикой (вспомогательное покрасочное оборудование, сушильные камеры, приточные пленумы), необходимые для полноценной работы фильтры, аксессуары для очистки и поддержания оборудования в рабочем состоянии.
- Два клеевых вала
- Плавная регулировка скорости
- Расширительный столик в комплекте
- Два клеевых вала
- Обрезка кромки от концевого выключателя и от педали для криволинейных заготовок
- Поворотная клеевая ванна
- Узел снятия свесов
- Вынесенная отдельно чистовая торцовка
- Кол-во шпинделей: 21 шт
- Мощность: 1,5 кВт
- Вес: 290 кг
- Два клеевых вала
- Обрезка кромки от концевого выключателя и от педали для криволинейных заготовок
- Длина каретки: 3200 мм
- Общая мощность: 5,5 + 0,75 кВт
- Вес: 890 кг
Кол-во шпинделей, шт: 63
Мощность, кВт: 4,5
Вес, кг: 1100
- Кол-во шпинделей: 23 шт
- Мощность: 1,5 кВт
- Вес: 305 кг
Кол-во шпинделей, шт: 63
Мощность, кВт: 4,5
Вес, кг: 900
- Кол-во шпинделей: 23 шт
- Мощность: 1,5 кВт
- Вес: 310 кг
Кол-во шпинделей, шт: 88
Мощность, кВт: 10
Вес, кг: 1400
- Кол-во шпинделей: 29 шт
- Мощность: 1,5 кВт
- Вес: 344 кг
- Кол-во шпинделей: 21 шт
- Мощность: 1,5 кВт
- Вес: 350 кг
- Кол-во шпинделей: 35 шт
- Мощность: 2х1,5 кВт
- Вес: 450 кг
- Кол-во шпинделей: 21 шт
- Мощность: 1,5 кВт
- Вес: 360 кг
Количество барабанов: 2 шт
Высота барабана: 200 мм
Диаметр барабана: 300 мм
Количество барабанов: 1 шт
Высота барабана: 200 мм
Диаметр барабана: 300 мм
Рабочее поле, мм: 840 х 300
Мощность двигателя, кВт: 2,2
Вес: 148 кг
- Длина каретки: 3200 мм
- Общая мощность: 6,25 кВт
- Вес: 630 кг
Длина подвижного стола, мм: 3200
Мощность, кВт: 6,6
Вес, кг: 750